
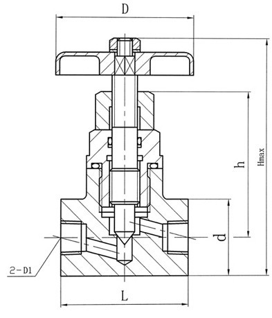
|
型号
|
Hmax
|
h
|
L
|
D
|
d
|
D1
|
|
JZF-G06H
|
113.5
|
70
|
64
|
Ф65
|
□32
|
NPT1/2
|
|
JZF-G05H
|
98
|
57
|
50
|
Ф54
|
□30
|
NPT1/4
|