首页
关于我们
产品中心
公司荣誉
阀门知识
客户服务
客户留言
联系我们
产品中心
水力控制阀
闸阀
蝶阀
球阀
截止阀
止回阀
过滤阀
疏水阀
安全阀
放料阀
排气阀
呼吸阀
旋塞阀
阻火阀
排泥阀
针型阀
隔膜阀
调节阀
平衡阀
柱塞阀
清管阀
管夹阀
角座阀
电磁阀
海底阀
天然气
液压阀门
陶瓷阀门
气体阀门
船用阀门
氧气阀门
视镜
浆液阀(刀型闸阀)
沟槽管件
当前位置:
首页
>
产品中心
>
过滤阀
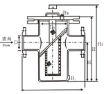
过滤阀
篮式孤底过滤器
型 号:
价 格:0元
详细介绍
蓝式过滤器
用途:适用于各种工业生产部门中液体物料的过滤,主要有石油、化工生产中弱腐蚀性物料,如:水、氨、油晶和烃类;化工生产中的腐蚀性物料,如:烧碱、纯碱、脂肪酸等;制冷工艺生产中的低温物料,如;甲烷、液氢、液氧等;轻工、食品、医药生产中具有卫生要求的物料;如各种饮料、乳制品、酒类、糖类和医药等。
篮式过滤器
篮式过滤器
直通平底篮式过滤器(CSN1型)
直通弧底篮式过滤器(CSN2型)
高低接管平底篮式过滤器(CSG1型)
高低接管弧底篮式过滤器(CSG2型)
上一篇:
[SRB14]高低蓝式过滤器
下一篇:
燃气专用篮式过滤器
管理员入口
|
企业邮
|
设为首页
|
加入收藏
|
联系我们
南京英标阀门有限公司 Copyright
©
2000-2011
ICP备案号:
苏ICP备11043689号
Powered by
PageAdmin CMS