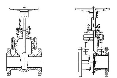
一、闸阀的特点
1.阀体有扁体和圆体两种形状:GB阀门采用圆体,ANSI磅级阀门DN≤300Lb采用扁体,DN≥400Lb采用圆体,阀体、阀盖的内腔和闸板、阀杆外表面等直接与介质接触的部件,全部名衬FEP(F46)等氟塑料;
2.密封副为FPF(F46)/ FEP(F46)或其它材料组合,摩擦系数小,启闭力矩低;
3.填料采用PTFE(F4)标准填料,密封性能好,维修更换方便;
4.带有弹性的闸板,可补偿闸板密封面与阀座密封面之间楔角偏差,吻合度好,密封效果理想;
5.介质可从两侧任意方向通过闸阀,适用于介质方向可能改变的管路上作用启闭装置。
二、基本型号
Z41F3型、Z41F46型和Z40F3、Z40F46型。
三、设计规范
遵循GB 12234/API6000标准
四、驱动方式
手动、电动、下齿轮、伞齿轮传动。
|
设计标准
|
GB12234
|
|
结构长度
|
GB12221
|
|
法兰标准
|
JB/T79-94
|
|
GB9113.1-26
|
|
|
检验试验
|
GB/T13927
|
|
驱动方式
|
手动、电动、气动
|
|
手动
|
Z41F 3
|
Z40F 3
|
蜗轮
|
Z441F 3
|
Z440F 3
|
|
Z41F 46
|
Z40F 46
|
Z541F 46
|
Z540F 46
|
||
|
气动
|
Z641F 3
|
Z640F 3
|
电动
|
Z941F 3
|
Z940F 3
|
|
Z641F 46
|
Z640F 46
|
Z941F 46
|
Z940F 46
|
|
序号
|
零件名称
|
灰铸铁
|
铸钢
|
不锈耐酸铸钢
|
超低碳不锈耐酸铸阀
|
||
|
Z
|
C
|
P
|
R
|
P L
|
R L
|
||
|
1
|
阀体/端盖/闸板
|
HT250
|
WCB
|
CF8
|
CF8M
|
CF3
|
CF3M
|
|
2
|
阀杆
|
1Cr13
|
2Cr13
|
1Cr18Ni9
|
1Cr18Ni12Mo2Ti
|
00Cr18Ni10
|
00Cr17Ni14Mo2
|
|
3
|
衬里/阀座
|
PTFE(F 4 )、PCTFE(F 3 )、FEP(F 46 )、PFA(可溶性 4 )
|
|||||
|
4
|
填料/压盖
|
WCB
|
CF8
|
CF8M
|
CF3
|
CF3M
|
|
|
5
|
填料
|
PTFE(F 4 )
|
PTFE(F 4 )
|
PTFE(F 4 )
|
|||
|
6
|
活节螺栓
|
35
|
1Cr17Ni2
|
1Cr17Ni2
|
|||
|
7
|
阀杆螺母
|
ZCuAI10Fe3
|
ZCuAI10Fe3
|
ZCuAI10Fe3
|
|||
|
8
|
紧固螺母
|
45
|
1Cr17Ni2
|
1Cr18Ni9Ti
|
|||
|
9
|
螺母
|
|
0Cr18Ni9
|
0Cr18Ni9
|
|||
|
10
|
手轮
|
WCB
|
WCB
|
WCB
|
|||

|
公称通径
|
标准值
|
参考值
|
||||||||||
|
DN(mm)
|
NPS(inch)
|
L
|
D
|
D1
|
D2
|
f
|
b
|
Z-Фd
|
W
|
D 0
|
H
|
WT(Kg)
|
|
PN0.6MPa
|
||||||||||||
|
15
|
1/2
|
130
|
80
|
55
|
40
|
2
|
12
|
4-Ф12
|
100
|
100
|
120
|
5
|
|
20
|
3/4
|
150
|
90
|
65
|
50
|
2
|
14
|
4-Ф12
|
100
|
120
|
140
|
6
|
|
25
|
1
|
160
|
100
|
75
|
60
|
2
|
14
|
4-Ф12
|
120
|
130
|
150
|
7
|
|
32
|
11/4
|
180
|
120
|
90
|
70
|
2
|
16
|
4-Ф14
|
120
|
156
|
185
|
10
|
|
40
|
11/2
|
240
|
130
|
100
|
80
|
3
|
16
|
4-Ф14
|
160
|
165
|
205
|
18
|
|
50
|
2
|
250
|
140
|
110
|
90
|
3
|
16
|
4-Ф14
|
160
|
350
|
400
|
25
|
|
65
|
21/2
|
270
|
160
|
130
|
110
|
3
|
16
|
4-Ф14
|
180
|
370
|
435
|
30
|
|
80
|
3
|
280
|
185
|
150
|
125
|
3
|
18
|
4-Ф18
|
180
|
430
|
510
|
43
|
|
100
|
4
|
300
|
205
|
170
|
145
|
3
|
18
|
4-Ф18
|
220
|
495
|
595
|
58
|
|
125
|
5
|
325
|
235
|
200
|
175
|
3
|
20
|
8-Ф18
|
220
|
610
|
735
|
100
|
|
150
|
6
|
350
|
260
|
225
|
200
|
3
|
20
|
8-Ф18
|
240
|
670
|
820
|
115
|
|
200
|
8
|
400
|
315
|
280
|
255
|
3
|
22
|
8-Ф18
|
240
|
815
|
1015
|
145
|
|
250
|
10
|
450
|
370
|
335
|
310
|
3
|
24
|
12-Ф18
|
240
|
965
|
1215
|
230
|
|
300
|
12
|
500
|
435
|
395
|
362
|
4
|
24
|
12-Ф23
|
280
|
1140
|
1440
|
335
|
|
350
|
14
|
550
|
485
|
445
|
412
|
4
|
26
|
12-Ф23
|
280
|
1275
|
1625
|
540
|
|
400
|
16
|
600
|
535
|
495
|
462
|
4
|
28
|
16-Ф23
|
320
|
1445
|
1845
|
670
|
|
450
|
18
|
650
|
590
|
550
|
518
|
4
|
28
|
16-Ф23
|
320
|
1530
|
1980
|
780
|
|
500
|
20
|
700
|
640
|
600
|
568
|
4
|
30
|
16-Ф23
|
360
|
1725
|
2225
|
850
|
|
公称通径
|
标准值
|
参考值
|
||||||||||
|
DN(mm)
|
NPS(inch)
|
L
|
D
|
D1
|
D2
|
f
|
b
|
Z-Фd
|
D 0
|
H
|
H1
|
WT(Kg)
|
|
PN1.0MPa
|
||||||||||||
|
15
|
1/2
|
130
|
95
|
65
|
45
|
2
|
14
|
4-Ф14
|
100
|
110
|
125
|
6
|
|
20
|
3/4
|
150
|
105
|
75
|
55
|
2
|
16
|
4-Ф14
|
100
|
120
|
140
|
7
|
|
25
|
1
|
160
|
115
|
85
|
65
|
2
|
16
|
4-Ф14
|
120
|
132
|
155
|
8
|
|
32
|
11/4
|
180
|
135
|
100
|
78
|
2
|
18
|
4-Ф18
|
120
|
156
|
185
|
11
|
|
40
|
11/2
|
240
|
145
|
110
|
85
|
3
|
18
|
4-Ф18
|
160
|
167
|
210
|
20
|
|
50
|
2
|
250
|
160
|
125
|
100
|
3
|
20
|
4-Ф18
|
160
|
358
|
410
|
28
|
|
65
|
21/2
|
270
|
180
|
145
|
120
|
3
|
20
|
4-Ф18
|
180
|
375
|
440
|
32
|
|
80
|
3
|
280
|
195
|
160
|
135
|
3
|
22
|
4-Ф18
|
180
|
435
|
515
|
45
|
|
100
|
4
|
300
|
215
|
180
|
155
|
3
|
22
|
8-Ф18
|
220
|
500
|
600
|
60
|
|
125
|
5
|
325
|
245
|
210
|
185
|
3
|
24
|
8-Ф18
|
220
|
615
|
740
|
110
|
|
150
|
6
|
350
|
280
|
240
|
210
|
3
|
24
|
8-Ф23
|
240
|
675
|
825
|
120
|
|
200
|
8
|
400
|
335
|
295
|
265
|
3
|
26
|
8-Ф23
|
280
|
820
|
1020
|
150
|
|
250
|
10
|
450
|
390
|
350
|
320
|
3
|
28
|
12-Ф23
|
320
|
970
|
1220
|
240
|
|
300
|
12
|
500
|
440
|
400
|
368
|
4
|
28
|
12-Ф23
|
320
|
1145
|
1445
|
340
|
|
350
|
14
|
550
|
500
|
460
|
428
|
4
|
30
|
16-Ф23
|
360
|
1280
|
1630
|
550
|
|
400
|
16
|
600
|
565
|
515
|
482
|
4
|
32
|
16-Ф25
|
400
|
1450
|
1850
|
680
|
|
450
|
18
|
650
|
615
|
565
|
532
|
4
|
32
|
20-Ф25
|
500
|
1538
|
1988
|
795
|
|
500
|
20
|
700
|
670
|
620
|
585
|
4
|
34
|
20-Ф25
|
500
|
1730
|
2230
|
880
|
|
PN1.6MPa
|
||||||||||||
|
15
|
1/2
|
130
|
95
|
65
|
45
|
2
|
14
|
4-Ф14
|
120
|
110
|
130
|
7
|
|
20
|
3/4
|
150
|
105
|
75
|
55
|
2
|
16
|
4-Ф14
|
120
|
120
|
140
|
8
|
|
25
|
1
|
160
|
115
|
85
|
65
|
2
|
16
|
4-Ф14
|
120
|
135
|
160
|
9
|
|
32
|
11/4
|
180
|
135
|
100
|
78
|
2
|
18
|
4-Ф18
|
160
|
160
|
190
|
13
|
|
40
|
11/2
|
240
|
145
|
110
|
85
|
3
|
18
|
4-Ф18
|
160
|
170
|
220
|
25
|
|
50
|
2
|
250
|
160
|
125
|
100
|
3
|
20
|
4-Ф18
|
160
|
360
|
410
|
32
|
|
65
|
21/2
|
270
|
180
|
145
|
120
|
3
|
20
|
4-Ф18
|
180
|
380
|
440
|
38
|
|
80
|
3
|
280
|
195
|
160
|
135
|
3
|
22
|
8-Ф18
|
180
|
440
|
520
|
50
|
|
100
|
4
|
300
|
215
|
180
|
155
|
3
|
24
|
8-Ф18
|
240
|
500
|
600
|
68
|
|
125
|
5
|
325
|
245
|
210
|
185
|
3
|
26
|
8-Ф18
|
240
|
615
|
740
|
125
|
|
150
|
6
|
350
|
280
|
240
|
210
|
3
|
28
|
8-Ф23
|
280
|
680
|
830
|
170
|
|
200
|
8
|
400
|
335
|
295
|
265
|
3
|
30
|
12-Ф23
|
280
|
820
|
1020
|
210
|
|
250
|
10
|
450
|
405
|
355
|
320
|
3
|
32
|
12-Ф25
|
320
|
980
|
1230
|
260
|
|
300
|
12
|
500
|
460
|
410
|
375
|
4
|
34
|
12-Ф25
|
320
|
1150
|
1450
|
480
|
|
350
|
14
|
550
|
520
|
470
|
435
|
4
|
38
|
16-Ф25
|
400
|
1285
|
1635
|
620
|
|
400
|
16
|
600
|
580
|
525
|
485
|
4
|
40
|
16-Ф30
|
400
|
1455
|
1855
|
805
|
|
450
|
18
|
650
|
640
|
585
|
545
|
4
|
44
|
20-Ф30
|
500
|
1545
|
1990
|
880
|
|
500
|
20
|
700
|
705
|
650
|
608
|
4
|
46
|
20-Ф34
|
500
|
1735
|
2235
|
920
|
|
公称通径
|
标准值
|
参考值
|
||||||||||
|
DN(mm)
|
NPS(inch)
|
L
|
D
|
D1
|
D2
|
f
|
b
|
Z-Фd
|
D 0
|
H
|
H1
|
WT(Kg)
|
|
PN2.5MPa
|
||||||||||||
|
15
|
1/2
|
130
|
95
|
65
|
45
|
2
|
16
|
4-Ф14
|
120
|
110
|
130
|
8
|
|
20
|
3/4
|
150
|
105
|
75
|
55
|
2
|
16
|
4-Ф14
|
120
|
120
|
140
|
9
|
|
25
|
1
|
160
|
115
|
85
|
65
|
2
|
16
|
4-Ф14
|
160
|
135
|
160
|
10
|
|
32
|
11/4
|
180
|
135
|
100
|
78
|
2
|
18
|
4-Ф18
|
160
|
160
|
190
|
14
|
|
40
|
11/2
|
240
|
145
|
110
|
85
|
3
|
18
|
4-Ф18
|
180
|
170
|
220
|
28
|
|
50
|
2
|
250
|
160
|
125
|
100
|
3
|
20
|
4-Ф18
|
180
|
360
|
410
|
36
|
|
65
|
21/2
|
270
|
180
|
145
|
120
|
3
|
22
|
8-Ф18
|
240
<, /TD>
|
380
,
|
440
|
45
|
|
80
|
3
|
280
|
195
|
160
|
135
|
3
|
22
|
8-Ф18
|
240
|
440
|
520
|
58
|
|
100
|
4
|
300
|
230
|
190
|
160
|
3
|
24
|
8-Ф23
|
280
|
500
|
600
|
76
|
|
125
|
5
|
325
|
270
|
220
|
188
|
3
|
28
|
8-Ф25
|
280
|
615
|
740
|
143
|
|
150
|
6
|
350
|
300
|
250
|
218
|
3
|
30
|
8-Ф25
|
320
|
680
|
830
|
178
|
|
200
|
8
|
400
|
360
|
310
|
278
|
3
|
34
|
12-Ф25
|
320
|
820
|
1020
|
243
|
|
250
|
10
|
450
|
425
|
270
|
332
|
3
|
36
|
12-Ф30
|
400
|
980
|
1230
|
275
|
|
300
|
12
|
500
|
485
|
430
|
390
|
4
|
40
|
16-Ф30
|
400
|
1150
|
1450
|
520
|